Schulhaus Seeblick, Horgen

Oberstufenschulhaus mit Dreifachturnhalle, Wettbewerb 2023, 1. Preis, Projekt/Ausführung 2023-2027
Bild: Studio Miskeljin

Bild: Studio Miskeljin

Das Schulareal Berghalden/Rainweg in Horgen wächst kontinuierlich. 1950 wurde das Sekundarschulhaus erstellt, 1967 folgte das Oberstufenschulhaus mit zwei Sporthallen, 2010 kam die Doppelturnhalle Rainweg dazu. Die demografische Entwicklung und das anhaltende Wachstum der Gemeinde Horgen machen den Bau weiteren Schulraums notwendig. 2021 beantragte die Schulpflege ein neues Oberstufenschulhaus f

Vom Schulhaus zum Campus
Das Sekundarschulhaus Berghalden wurde als klassischer Zeilenbau errichtet. Sein leicht verwinkelter Baukörper bildete zusammen mit der Turnhalle klare Raumkanten und prägte die Anlage. Durch die Erweiterung von 1967 wurde der heute geschützte Ursprungsbau eng gefasst – im Nordosten so deutlich, dass die Nähe zum Schutzobjekt bis heute als heikel gilt. Mit jeder Verdichtung stellt sich die Frage drängender: Welche Rolle spielen Freiflächen und Aufenthaltsräume für die Qualität des gesamten Areals?

Der jüngste Neubau einer Sporthalle 2010 im Südwesten markierte einen Wendepunkt. Aus einer einzelnen Schule entwickelte sich ein Ensemble aus unterschiedlichen Bauten mit eigenem Charakter. Der geplante Neubau bietet zusätzlichen Raum für sechs Klassen, drei Fachzimmer für den naturwissenschaftlichen Unterricht und das Werken sowie eine neue Dreifachturnhalle. Die aktuelle Verdichtung versteht sich nicht mehr als blosses Hinzufügen, sondern als bewusste Stärkung des Zusammenspiels von Architektur und Aussenraum. So wandelt sich das Schulhaus fortlaufend zu einem Campus, der nicht mehr nur Lernort ist, sondern ein Gefüge aus Gebäuden und Freiräumen, das Begegnung, Bewegung und Aufenthalt gleichermassen trägt.

Situationsmodell

Situationsmodell

Strukturmodell, Turnhalle und Schulhau

Strukturmodell, Turnhalle und Schulhau

Ansicht Nord; Neubau Schulhaus, Turnhalle, Verbindungstreppe

Ansicht Nord; Neubau Schulhaus, Turnhalle, Verbindungstreppe

Querschnitt

Querschnitt

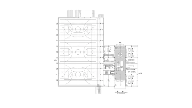
Erdgeschoss

Erdgeschoss

Bild: Studio Miskeljin
Bild: Studio Miskeljin
Bild: Studio Miskeljin
Bild: Studio Miskeljin
Aufenthalt - Treppenhaus

Aufenthalt - Treppenhaus

Modell Treppenhaus

Modell Treppenhaus

Dreifachturnhalle

Dreifachturnhalle

Schulhaus Seeblick, Horgen

2027
2023
1st prize
Address

Rainweg 16
Horgen
Switzerland

Client
Auftraggeber: HRS Real Estate AG, Kriens / Bauherrschaft: Politische Gemeinde Horgen Liegenschaften + Sport
Realization
2025
2027
Team
Piet Eckert, Wim Eckert, Claudio Aquino, Dana Hemmi, Susanne Krätschmer, Bastian Urban, Sedo Jang, Lukasz Wlodarczyk, Jakub Kalinowski, Patryk Mojsa, Jan Szeligamm, Félix Mayaux, Marius Breitenstein, Timo Dötzer
Collaboration

Bauleitung/Baumanagement: HRS Real Estate AG, Kriens
Bauingenieur: Ribi + Blum AG, Romanshorn
Holzbauingenieur: Timbatec AG, Zürich
HLKSE-Planer: Amstein + Walthert AG, Zürich
Bauphysik: Kopitsis Bauphysik AG, Wohlen AG
Brandschutz: Timbatec AG, Zürich
Landschaft: Neuland ArchitekturLandschaft GmbH, Zürich